公告通知

当前位置: 首页 > 公告通知 > 正文

东南书院钢结构书屋竞争性谈判变更通知

发布日期:2022-05-28    作者:         点击:

一、施工方案

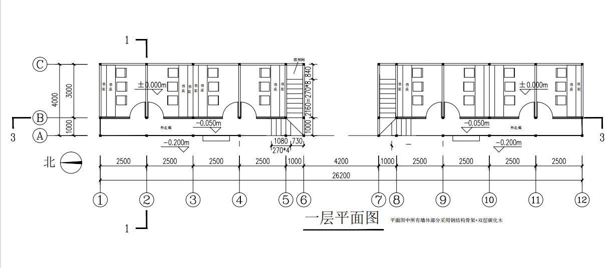
1. 整体结构采用混凝土基础梁+上部钢结构形式。投标方只负责室内地面以上部分,包括钢结构骨架、墙体骨架及碳化木包面、屋面碳化木檩条及欧松板、沥青瓦。

2. 所有钢结构采用镀锌低碳钢Q235B钢管。

3.8间书屋室内地面标高为±0.000,外走廊地面低于室内地面5cm,高于室外地面约15cm。

4.8间书屋天面钢结构骨架主龙骨100*100*4,次龙骨60*40*3;骨架上布置间距500mm的碳化木檩条45*105*4000,檩条上方铺12mm欧松板板,木板上铺一层防水材料后,铺双层红色沥青瓦。

5.8间书屋西立面采用玻璃墙体和地簧玻璃门,采用12mm钢化玻璃。8间书屋东侧墙体以及最南、最北两侧墙体钢骨架外铺10mm碳化木扣板。中间门楼屋面钢结构骨架上12mm欧松板板,木板上铺一层防水材料后,铺碳化木扣板。中间门楼四面墙体钢骨架外铺碳化木扣板。

6.中间的门楼(二层)地面骨架上铺防腐木,防腐木上12mm符合木地板。中间的门楼(二层)西立面窗户为推拉铝合金双层玻璃窗户(含金刚砂纱窗)。东立面楼梯间初窗户为固定铝合金双层玻璃玻璃。

7.窗户所有铝合金门窗、木檩条、碳化木扣板、防腐木、沥青瓦具体颜色由我方提供。

附件1:剖面西立面图

附件2:一层平面图

附件3:二层平面图

附件4:二层钢结构平面布置图

附件5:屋面平面图及门楼西立面图

附件6:屋面平面布置图和2-2剖面图

附件7:柱网平面图纸图

附件8:碳化木檩条平面布置图

附件9:东南书院9个书屋西立面效果图一

附件10:东南书院9个书屋西立面效果图二

附件11:东南书院9个书屋西立面效果图三

友情链接: 学校首页

武汉生物工程学院资产与采购招标管理处