第一章 竞争性谈判邀请函
根据我校利川产学研用基地建设需要,我校拟采用竞争性谈判的方式确定利川产学研用基地·梨园地块168套教师公寓厨柜供货及安装项目的供应商。欢迎具备相应资格和履约能力的供应商前来投标。
一、项目名称:武汉生物工程学院利川产学研用基地·梨园地块教师公寓厨柜供货及安装项目
二、采购单位:湖北峻江绿色发展有限公司利川分公司
三、招标形式:竞争性谈判
四、安装地点:武汉生物工程学院·利川产学研用基地(湖北省恩施州利川市南坪乡川东村)
五、谈判供应商资格要求
1.投标人应具备《中华人民共和国政府采购法》第22条规定的条件;
2.投标人必须是在中华人民共和国境内注册并取得营业执照的独立法人,具有相应经营范围;
3.投标人若为代理经销商,必须具有相关厨柜生产企业的品牌代理授权书;
4.投标人必须有承担过3项及以上相关项目的成功案例(须提供项目合同关键页);
5.近三年内在经营活动中没有重大违法记录(包括约谈);
6.投标人必须提供近三年的财务状况报告(表);
7.本项目不接受联合体投标,项目执行过程中不允许转包、分包;
8.投标单位负责人为同一人或者存在直接控股、管理关系的不同投标人,不得同时参加本项目投标。
9.在我校有不良履约记录者,我校有权不予接收其投标文件。
六、谈判文件递交流程
1.谈判保证金缴纳:现场缴纳。缴纳地点:湖北省武汉市阳逻区·武汉生物工程学院财务处(长青楼一楼127室)
2.投标文件递交地点:湖北省武汉市阳逻区·武汉生物工程学院监察处(长青楼三楼323室),凭投标保证金转账凭证办理登记手续。
3.谈判文件递交截止时间:自本公告发布之日起至2024年7月 4日。
4.逾期送达不予以接受,视为自动放弃,不参与本次谈判。谈判文件外包装必须加盖密封章。
六、竞争性谈判时间和地点:另行通知
七、联系方式:
商务咨询: 董老师 027-89641838
技术咨询: 黄老师 027-89688896
投诉电话: 张老师 027-89649680
八、谈判保证金:壹万元。若未中标则此款在结果公示次日起10日内无息退还,若中标此款即转为履约保证金,有下列情况之一者此款不予退还:
1.投标人递交谈判响应文件后不参加谈判的;
2.不按竞争性谈判文件规定提交谈判响应文件的;
3.在谈判有效期内撤回投标的;
4.在谈判过程中弄虚作假、串通投标等行为的;
5.中标后恶意弃标的。
第二章 谈判人须知
一、谈判文件的组成
谈判文件一式肆份,其中正本壹份,副本叁份,文件须密封加盖骑缝章,否则视为投标无效。其组成部分至少包含:
1.封面及目录(封面应注明项目名称、供应商名称、联系人、联系电话、并正确表明“正本”“副本”字样);
2.开标一览表。此项须详细注明:报价、供货周期(生产周期、安装周期)、付款节点以及是否响应招标文件的要求;
3.符合谈判供应商资格要求的营业执照及其它资质证书(如品牌代理授权书)等的复印件,盖单位公章;
4.法人身份证复印件、法人授权委托书、被委托人身份证复印件;
5.厨柜配置及参数一览表(必须载明板材、五金、台面石、配件的品牌(或型号)等)
6.投标人对投标标的、投标过程合法性以及工期承诺;
7.产品售后服务的内容;
8.投标文件中未响应招标文件的详细描述。
二、质量保修期:验收合格之日起2年;质量保修金:合同结算价款的5%,保修期内若未发生质保扣款事项,质保期满后,无息返还。
三、招标文件的澄清
投标人若对招标文件存在疑问需要澄清,应在获取竞争性谈判公告后,按公告规定的时间、地点以书面形式递交,招标人将对收到的疑问当面予以答复。
四、竞争性谈判公告的修改
1.在谈判文件递交截止时间前招标人可主动或在答复投标人需要澄清的问题时对招标文件进行修改,修改的内容与招标文件具有同等效力。
2.招标人对招标文件的修改将以书面形式发给所有投标人。
3.为使投标人在准备投标文件时有合理的时间考虑招标文件的修改,招标人可根据规定酌情推迟投标文件递交截止日期。
五、投标费用
投标费用系指投标人承担的所有与准备和递交投标文件有关的费用。无论投标过程和结果如何,招标人在任何情况下不负担投标人因本次投标所发生的一切费用。
六、投标人应阅读招标文件中所有须知、格式、条款等要求,投标人未按招标文件要求提供全部资料或提交的投标文件未对招标文件做出实质性响应,投标人将承担投标文件可能被拒绝的风险。
七、关于售后服务:投标人对标的须提供不低于2年的质量保证。
八、投标报价要求:此项目为交钥匙工程,投标人所报价格为全部费用。投标人根据市场行情、企业自身实力,结合本项目特点及风险,自主确定供货价格。
九、明确的内容不得更改、缺项、漏项、少报、漏报,否则,投标无效。
十、投标文件正本、副本不一致的,以正本为准;投标文件中的大写金额和小写金额不一致的,以大写金额为准;总价金额与单价金额不一致的,以单价金额为准,但单价金额小数点有明显错误的除外。结算单位为人民币。
十一、招标人在授予合同时有权对采购清单规定的货物数量、服务范围予以增加或减少。
十二、在谈判期间,谈判小组可能就投标文件向有关投标人进行询标,届时投标人须有熟悉投标方案并能决定投标文件中有关条款的授权代表参加。
十三、本次招标活动的最终解释权属武汉生物工程学院。
第三章 技术参数
1】、柜体
1.1)暂按如下尺寸要求考虑报价(实际下单尺寸以柜体设计图纸为准):
1.1.1)吊柜与地柜之间净标高控制在900mm左右。
1.1.2)柜体尺寸:
1.1.2.1)吊柜-高度700mm、进深330mm;
1.2.2.2)地柜-高度700mm、进深560mm。
1.2)材质规格:
1.2.1)柜体板:多层生态板≥17mm。
1.2.2)门板:颜色待定,18mmE1级防潮生态板。
1.2.3)背板:多层生态板≥5mm。
1.2.4)底板:18mm防水生态板。
1.2.5)台面:
1.2.5.1)材质为人造石(国产),含前后挡水;
1.2.5.2)含铝塑#字垫条,垫条壁厚>1mm;
1.2.5.3)台面尺寸:进深600mm、厚度≥15mm
1.2.5.4)后挡水50m高,前裙40mm。
1.2.6)每套地柜设置2个拉篮。
1.2.7)吊柜预留油烟机安装位置、地柜和台面预留天然气管孔洞。
1.3)柜体板材甲限品牌:鹰冠、福汉、金汉。
2】水槽
2.1)单槽、SUS304不锈钢;
2.2)不锈钢原色;
2.3)外径尺寸(长*宽*深):450*400*200mm(R40);
2.4)安装方式:台下安装;
2.5)包含水槽、配件(含去水器,下水管、角阀等)安装.
3】水龙头
3.1)SUS304不锈钢;
3.2)与水槽颜色保持一致;
3.3)具备花洒出水和水柱出水两种模式;
3.4)包含水龙头安装。
4】水槽、水龙头样式参考如下图:

三、本项目为供货及安装的形式,承包人需上门逐户测量、送货到户并安装(含水槽、水龙头、管件等)完成。
四、厨房墙地面、吊顶装修已完成。
5】安装地点:湖北省恩施州利川市南坪乡川东村(武汉生物工程学院利川产学研用基地),各投标人综合考虑好运输成本和安装成本,后期不做任何调整。
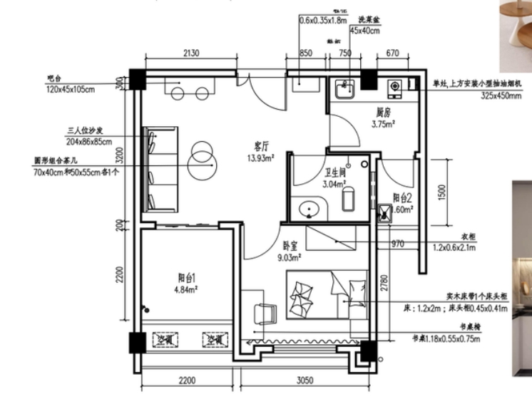
第三章 图纸
梨园教师公寓户型平面布局图
武汉生物工程学院资产与采购招标管理处
2024年6月29日