招标信息

当前位置: 首页 > 招标信息 > 正文

东南书院钢结构书屋竞争性谈判公告2022-029

发布日期:2022-05-27    作者:         点击:

因学校建设需要,拟采用竞争性谈判方式确定东南书院钢结构书屋施工单位,欢迎具备相关资质的供应商参加竞争性谈判。

一、采购项目:东南书院钢结构书屋

二、采购形式:竞争性谈判

三、采购单位:武汉生物工程学院(武汉市阳逻经济开发区汉施路1#)

四、谈判供应商资格要求:

1.投标人应具备《中华人民共和国政府采购法》第22条规定的条件;

2.投标人必须是在中华人民共和国境内注册并取得营业执照的独立法人,具有相应经营范围和钢结构工程专业资质;

3.投标人参加本项目投标活动前三年内,在经营活动中无犯罪、违法、违纪、违规行为(包括约谈);

4.本项目不接受联合体投标,项目执行过程中不允许转包、分包;

5.投标单位负责人为同一人或者存在直接控股、管理关系的不同投标人,不得同时参加本项目投标。

五、谈判响应文件组成

1.符合谈判供应商资格要求的营业执照、钢结构工程专业资质证书等的复印件,盖单位公章;

2.法人身份证复印件、法人授权委托书、被委托人身份证复印件;

3.工程报价及施工工艺;

4.施工工期;

5.谈判文件壹正叁副本,格式不做特殊要求。

六、谈判保证金

1.谈判保证金:壹万元(现金或刷卡)。

2.谈判保证金缴纳截至时间:2022年5月30日11:30前

3.缴纳方式:

方式一:现场缴纳学校财务处(行政楼一楼)

方式二:网上对公转账方式(户名:武汉生物工程学院;账号:42001136239053000395;开户行:建行阳逻电力支行105521000174)。打款事由:东南书院钢结构书屋投标保证金)。

4.其他

若未中标则此款在结果公示次日起7日内无息退还,若中标此款即转为履约保证金,有下列情况之一者此款不予退还:

(1)谈判人递交谈判响应文件后不参加谈判的;

(2)不按竞争性谈判文件规定提交谈判响应文件的;

(3)在谈判有效期内撤回投标的;

(4)在谈判过程中弄虚作假、串通投标等行为的;

(5)中标后恶意弃标的。

七、报名登记:谈判人须于2022年5月30日10:30前凭谈判保证金收据到学校监察处办理谈判登记手续(行政楼323室)。未缴纳谈判保证金或谈判登记手续不得参加竞争性谈判。

八、谈判文件递交

1.谈判文件截止时间:请于2022年5月30日10:30。前将谈判文件外包装且加盖密封章后送达监察处(行政楼323室)。逾期送达不予以接受,视为自动放弃,不参加本次谈判。

2.谈判文件递交入校申请手续:因学校疫情防控,所有投标人员进校需办理入校审批手续.

3.入校审批:14天内无武汉市外行程,凭健康码、行程码绿码预约进校;14天内有武汉市外低风险区行程,凭24小时内核酸检测报告、健康码、行程码绿码预约进校。行程码若带*号,禁止入校。(预约电话:027-89641228 许老师)。

九、谈判时间、地点:2022年5月30日14:30

十、联系方式:

商务咨询 许老师 027-89641228

技术咨询 阮老师 18986185001

投诉电话 张老师 027-89649680

十一、付款方式:项目完工并经验收合格后,付全部货款的95%,另5%作为质保金,质保期满并经复验合格后支付。

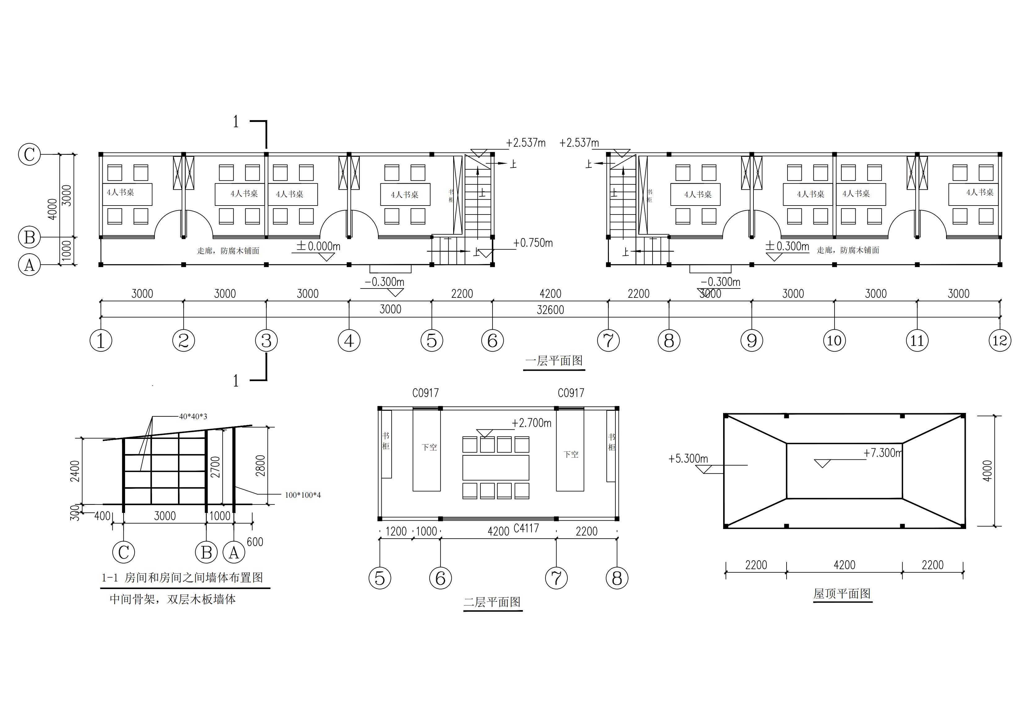
十二、东南书院钢结构施工方案

1.整体结构采用混凝土基础梁+上部钢结构形式。

2.所有钢结构采用镀锌低碳钢Q235B钢管。

3.八间书屋外走廊地面高于室外地面约30cm,外走廊钢结构骨架上铺防腐木40mm*40mm*4000mm,室内钢结构骨架上防腐木40mm*40mm*4000mm,再铺12mm厚复合木地板。8间书屋地面钢结构骨架主龙骨100*100*4和100*150*4,次龙骨60*40*3。

4.八间书屋天面钢结构骨架主龙骨100*100*4,次龙骨60*40*3;骨架上布置间距500mm的碳化木檩条45*105*4000,檩条上方铺12mm欧松板板,木板上铺一层防水材料后,铺双层红色沥青瓦。

5.八间书屋西立面采用玻璃墙体和地簧玻璃门,采用12mm钢化玻璃。八间书屋东侧墙体以及最南、最北两侧墙体钢骨架外铺10mm碳化木扣板。

6.八间书屋之间的墙体采用钢龙骨+双层碳化木板形式。

7.中间的门楼(二层)地面与8间木屋地面一致,屋面骨架上铺12mm欧松板板,木板上铺油毡防水后,铺10mm碳化木扣板。

8.所有外露的钢柱、钢梁涂木色油漆,颜色样式由我方提供。

9.所有木地板、木檩条、碳化木扣板、防腐木、沥青瓦具体颜色由我方提供。

10.设计方案(见附件1-9)

附件1:东南书院钢结构书屋西立面效果图一

附件2:东南书院钢结构书屋西立面效果图二

附件3:东南书院钢结构书屋西立面效果图三

附件4:东南书院钢结构书屋各楼层平面图

附件5:东南书院钢结构书屋门楼西立面和南立面图

附件6:东南书院钢结构书屋屋面结构布置图

附件7:东南书院钢结构书屋屋面平面图和基础平面图

附件8:东南书院钢结构书屋西立面和屋顶结构布置图

附件9:东南书院钢结构书屋柱网平面布置图和首层梁平面图

友情链接: 学校首页

武汉生物工程学院资产与采购招标管理处